Espace propriétaire
fr

Votre recherche

Nouveauté
Marseille (13006)

Local commercial - 496 m²

LOCAL COMMERCIAL 496M² + SSOL 218M²

1 355 000 €
Ref : 4337
Découvrir le bien

MARSEILLE 8E – 26 AVENUE DU PRADO

LOCAL COMMERCIAL / BUREAUX – ENVIRON 714 m² – LIBRE


Idéalement situé sur la très recherchée Avenue du Prado et à l'intersection de la Rue du Dr Escat, ce local commercial actuellement à usage de bureaux développe une surface totale d’environ 718 m², répartie sur plusieurs niveaux, offrant de nombreuses possibilités d’exploitation.


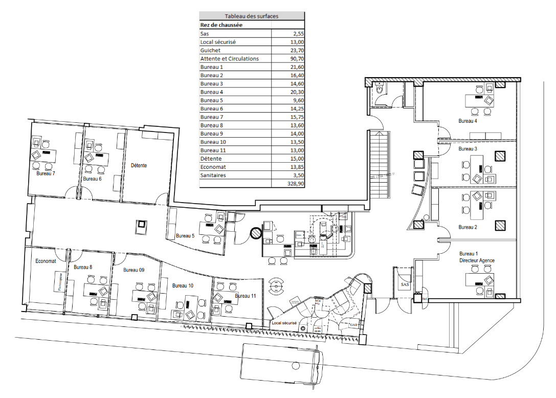
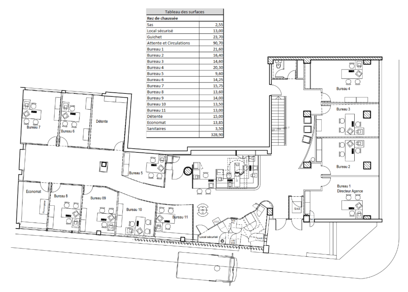
  • Rez-de-chaussée : 329 m², bénéficiant d’une excellente visibilité
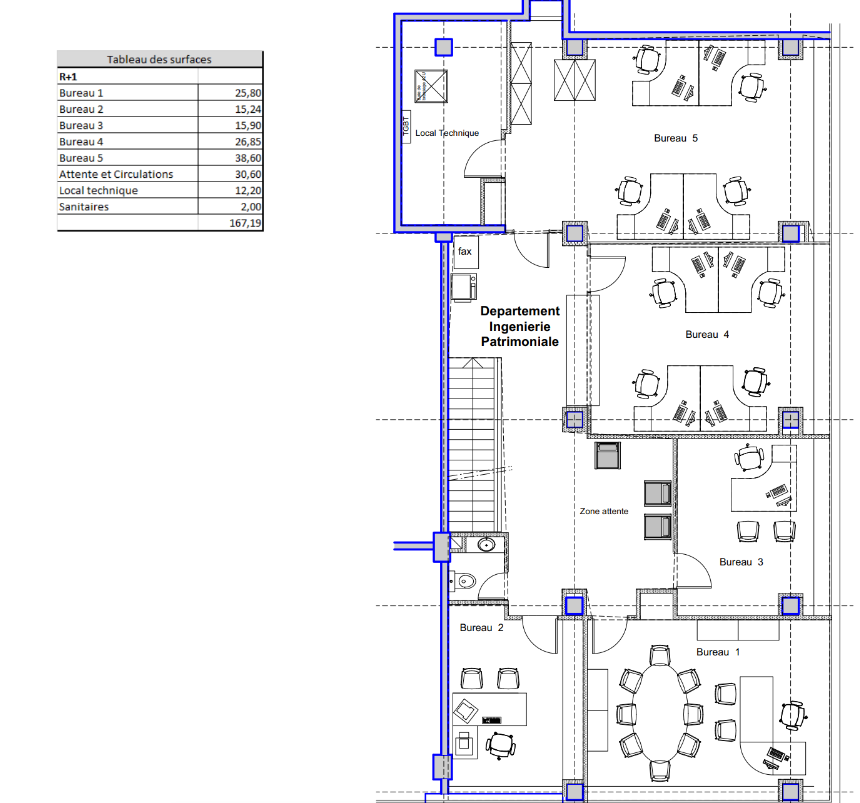
  • R+1 : 167 m², facilement aménageable
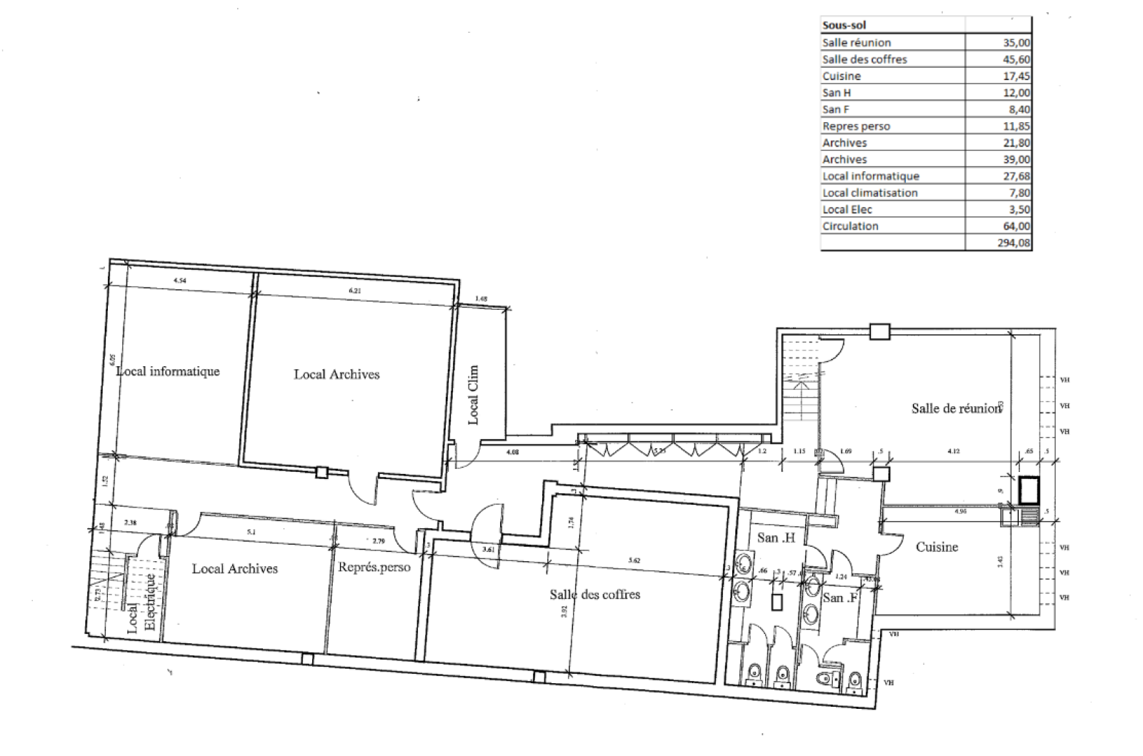
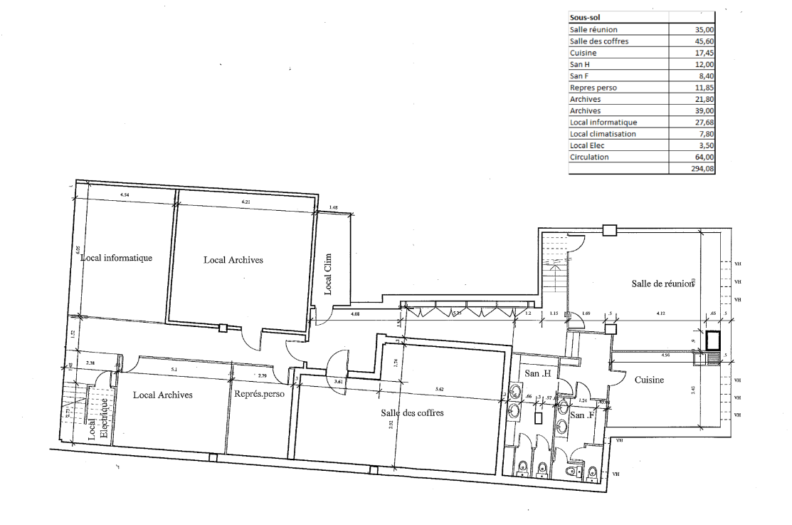
  • Sous-sol : 218 m², idéal pour archives, stockage ou locaux techniques
  • 2 places de parking en sous-sol


L’ensemble est libre de toute occupation, permettant une installation immédiate.


Ce bien se prête parfaitement à l’implantation d’un siège d’entreprise, de bureaux de standing, ou à l’exercice d’une profession médicale ou paramédicale.

Sa configuration et son emplacement stratégique en font également une opportunité rare pour tout projet professionnel d’envergure à Marseille.


Emplacement premium – Accessibilité optimale – Fort potentiel


TF : 12 550€


Les informations sur les risques auxquels ce bien est exposé sont disponibles sur le site www.georisques.gouv.fr.

Mandat n° 4337.

Contact : Djamel MANSERI, Tél : 06.07.71.28.81.

TRAD_ZEPHYR_Caracteristique TRAD_ZEPHYR_Valeurs
Type de transac Local commercial
Code postal 13006
Superficie (m²) 496
TRAD_ZEPHYR_Caracteristique TRAD_ZEPHYR_Valeurs
Copropriété OUI
nombre de lots 515
TRAD_ZEPHYR_Caracteristique TRAD_ZEPHYR_Valeurs
Prix de vente honoraires inclus 1 355 000 €
DPE GES
  • Commerces et santé
  • Loisirs
  • Ecoles
  • Transports
  • Pratique
Contacter pour ce bien
L'agence
Téléphone 04.91.13.42.52
Adresse
9, boulevard de Dunkerque 13002 Marseille

* Champ obligatoire

Les informations recueillies sur ce formulaire sont enregistrées dans un fichier informatisé par La Boite Immo agissant comme Sous-traitant du traitement pour la gestion de la clientèle/prospects de l'Agence / du Réseau qui reste Responsable du Traitement de vos Données personnelles. La base légale du traitement repose sur l'intérêt légitime de l'Agence / du Réseau. Elles sont conservées jusqu'à demande de suppression et sont destinées à l'Agence / au Réseau. Conformément à la loi « informatique et libertés », vous disposez des droits d’accès, de rectification, d’effacement, d’opposition, de limitation et de portabilité de vos données. Vous pouvez retirer votre consentement à tout moment en contactant directement l’Agence / Le Réseau. Consultez le site https://cnil.fr/fr pour plus d’informations sur vos droits. Si vous estimez, après avoir contacté l'Agence / le Réseau, que vos droits « Informatique et Libertés » ne sont pas respectés, vous pouvez adresser une réclamation à la CNIL. Nous vous informons de l’existence de la liste d'opposition au démarchage téléphonique « Bloctel », sur laquelle vous pouvez vous inscrire ici : https://www.bloctel.gouv.fr Dans le cadre de la protection des Données personnelles, nous vous invitons à ne pas inscrire de Données sensibles dans le champ de saisie libre.
Ce site est protégé par reCAPTCHA, les Politiques de Confidentialité et les Conditions d'Utilisation de Google s'appliquent.

Découvrir nos outils